Conheça um coworking pensado para o mundo pós-pandemia, em Londres
O espaço foi projetado de acordo com princípios da arquitetura de bem-estar e foi adaptado para nossa nova realidade
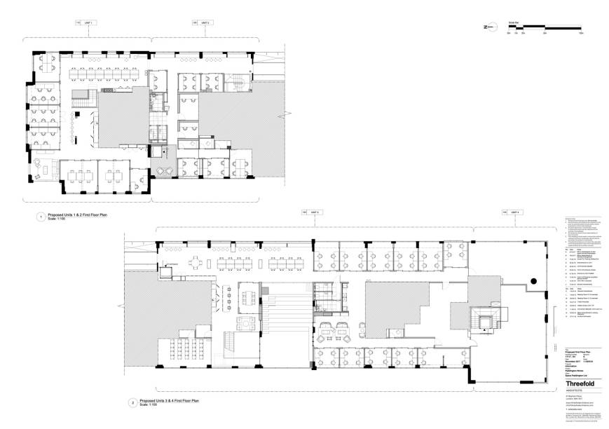
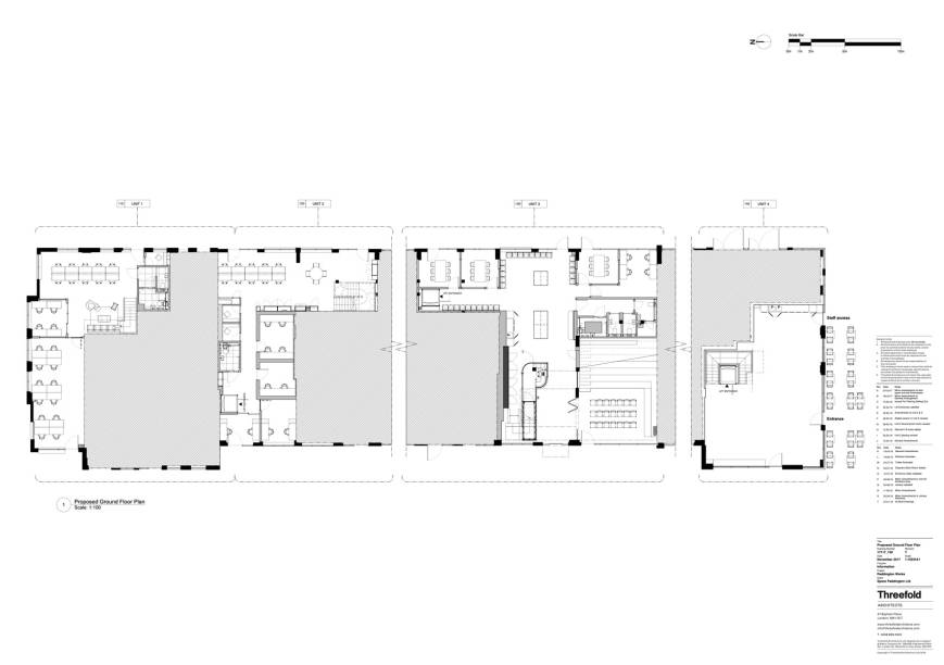
O escritório Threefold Architects concluiu o Paddington Works, um espaço de coworking e eventos em Londres que foi projetado em torno dos princípios do bem-estar. O lugar combina uma mistura de ambients que incluem estúdios privados, espaços compartilhados de coworking, salas de reuniões e um auditório multiuso, todos dispostos em dois andares.
Os espaços de trabalho são projetados para serem ágeis, proporcionando diferentes ambientes para atender às diversas atividades. Há também uma variedade de serviços de construção preocupados com a saúde, como filtragem de ar fresco e sistemas de iluminação adaptáveis. Em um momento em que muitos escritórios de coworking estão tentando se ajustar às mudanças nos hábitos de trabalho provocadas pela pandemia, este projeto oferece um modelo para o futuro dos espaços de trabalho compartilhados.
O Paddington Works baseia-se na pesquisa do Threefold sobre como a incorporação de princípios de bem-estar na arquitetura pode criar ambientes mais saudáveis e felizes. Esses princípios foram centrais para o briefing, embora o Paddington Works tenha sido projetado muito antes da pandemia.
O sistema de circulação de ar, que inclui filtragem antiviral, é projetado para trazer 25% mais ar fresco para o prédio do que o normal. Enquanto isso, o sistema de iluminação usa LEDs inteligentes para ajustar a temperatura da cor da luz ao longo do dia, de acordo com os ritmos circadianos.
A disposição do interior, organizada em dois pisos, também foi pensada nos ocupantes. Os espaços são divididos em grupos para permitir que pequenas comunidades se formem dentro do edifício. Cada cluster tem suas salas de reuniões e espaços de descanso, organizados em torno de uma cozinha e espaço social.
“Acho que muitos dos princípios de bem-estar são intuitivos para os arquitetos – proporcionando boa luz natural, amenidade visual, excelente acústica e qualidade do ar”, disse Matt Drisscoll, diretor do escritório que assina o projeto. “Além de como são os espaços, também estamos interessados em como eles serão usados e como as pessoas se movem em torno deles e interagem entre si”, continuou ele.
No centro do esquema está um auditório flexível, projetado como um enorme conjunto de degraus de madeira. O espaço pode ser utilizado para receber palestras, projeções e apresentações, mas também pode ser um espaço informal de trabalho ou reunião do dia a dia.
“Deve haver lugares tranquilos para ficar sozinho, lugares vibrantes para colaborar e tudo mais”, adiciona o diretor. “Sempre colocamos espaços sociais generosos no centro de nossos esquemas, para que as pessoas se reúnam em seus tempos de inatividade, espaços para apoiar, criar e promover uma cultura dentro de uma empresa.”
Cada degrau incorpora uma série de mesas-gavetas, que podem ser usadas para laptops ou notebooks. Existem também pontos de energia para carregar dispositivos. “Funciona como uma escada entre os níveis e se torna uma espécie de fórum, um espaço público dentro do prédio”, explicou Drisscoll.
A paleta de materiais responde à herança industrial da área da Bacia de Paddington, com fabricações de aço que lembram a estrutura da estação ferroviária projetada por Brunel. Estes são combinados com materiais como carvalho serrado bruto e mosaico. Muitos dos elementos industriais do projeto estão ocultos, por exemplo, telas de metal perfuradas cobrem as unidades de filtragem de ar.
O Paddington Works é uma joint venture entre o operador colaborador Space Paddington e o Westminster Council, voltado para startups nas indústrias de criação e tecnologia. Como resultado de seu design voltado para o bem-estar, o prédio foi capaz de adotar medidas de distanciamento social e higiene trazidas pela pandemia. Desinfectantes de mãos sem contato e acessórios antimicrobianos estavam entre os recursos já incluídos no projeto.
Veja mais fotos do projeto na galeria abaixo!





















Decoração de salas: 5 projetos em que o sofá é protagonista
Bolinho de frutas vermelhas saudável e para seu café da tarde!
Receita de lanche fácil e saudável: muffin de legumes sem glúten
Como desentupir vaso sanitário: 7 formas de resolver o problema
Veja uma receita de brigadeiro de batata-doce!





