Na casa em Trancoso, dá para ver o mar de todos os cômodos
Erguido num platô diante da faixa de mata que abraça as praias de Trancoso, esta casa esbanja conforto e harmonia com a natureza.












O empresário ainda era estudante quando descobriu as maravilhas das férias em Trancoso. Mais de duas décadas depois, decidiu comprar para a família sua primeira casa no Outeiro das Brisas, endereço disputado por gente interessada na tranquilidade deste trecho do litoral da Bahia. Há quatro anos, porém, encontrou um terreno debruçado sobre a mata virgem que separa o condomínio da praia e soube que estava diante de uma oportunidade única para construir. “O outro imóvel era ótimo, mas nos encantamos com o lote e com a ideia de ter algo com a nossa cara”, lembra. O contato com o construtor e designer Ricardo Salem e os arquitetos José Alberto Busacca e Paulo Milani também foi certeiro. “Como o cliente se sentia familiarizado com a linguagem da arquitetura de Trancoso, a opção pela ótima mão de obra local rendeu uma obra tranquila, de dois anos, sem contratempos”, diz Paulo, que mantém com o sócio, José Alberto, um escritório na cidade.
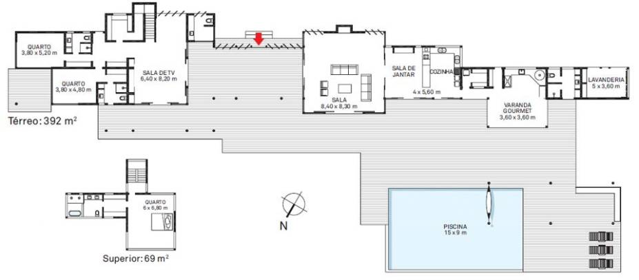
Além de abarcar a paisagem paradisíaca, o projeto se preocupou em estimular a circulação de ar e de pessoas por todo o primeiro piso, um grande e único vagão de quase 400 m2. Com as portas de correr definindo estar, jantar e cozinha, os ambientes podem ser completamente integrados. Dois dos três quartos estão nesse nível da morada de verão. “Nossas filhas podem receber as amigas e ter privacidade sem que percamos a nossa”, conta o empresário, cuja suíte ocupa o pavimento superior. Desde que a obra foi concluída, ele passa com a família o mês de janeiro todo no lugar. “Chegamos a vir para cá quatro vezes por ano, pelo menos”, diz o proprietário, que, com a melhoria do sistema elétrico do empreendimento, abriu mão do tradicional gerador de emergência. “Nunca tive problemas com falta ou queda de energia”, assegura. A iluminação é outro ponto alto da proposta. Especializados em luminotécnica, os arquitetos José Alberto Busacca e Paulo Milani propuseram um projeto alimentado apenas com leds. Assim, à noite, a casa, sem consumir muita energia, faz as vezes de farol no alto do morro, compondo com a natureza um poético cartão-postal.
Decoração de salas: 5 projetos em que o sofá é protagonista
Como desentupir vaso sanitário: 7 formas de resolver o problema
Apartamento usa tons claros e texturas naturais para criar aconchego sem madeira
7 jeitos caseiros de desentupir a pia da cozinha





