Esta casa se adaptou ao aclive do terreno
Pirambeira acima: a casa modular tem jeito de pousada, com distribuição em patamares e pátio interno
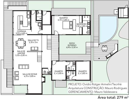
Quando decidiram procurar um terreno, Fernanda e Roberto pensavam em construir um refúgio de fim de semana, mas bastou encontrarem duas opções de lote num condomínio em Embu das Artes, a 20 km de São Paulo, para o discurso mudar. “Morávamos em apartamento e sentíamos falta de espaços abertos e ar livre. Começamos a imaginar nossa vida ali”, conta Fernanda. “Isso sempre acontece diante de uma paisagem real”, observa o arquiteto Ovídio Rotger Armelin, que ajudou a escolher o terreno e projetou a moradia. A ideia evoluiu para uma casa modular de 279 m², “com jeito de pousada”, nas palavras da moradora – sensação reforçada pela distribuição em patamares e pelo pátio interno entre os quartos. A escada de chapa metálica pintada (foto) é um dos charmes da casa.












Parede em frente à cama: 4 jeitos criativos para aproveitar esse espaço do quarto
Cozinha verde e azul: a tendência de decoração + dicas e inspirações
Reforma separa cozinha de estar e cria varanda gourmet com mesa de 3 m e 200 kg
Banheiro pequeno? A solução de marcenaria que dobra o espaço e acaba com a bagunça na bancada
Qual a cor que você deve usar em 2026 para ter sorte





