Perto da natureza e protegida da maresia
Da implantação no terreno aos acabamentos, tudo foi pensado para proteger esta casa de praia da maresia e tirar o máximo proveito da natureza.
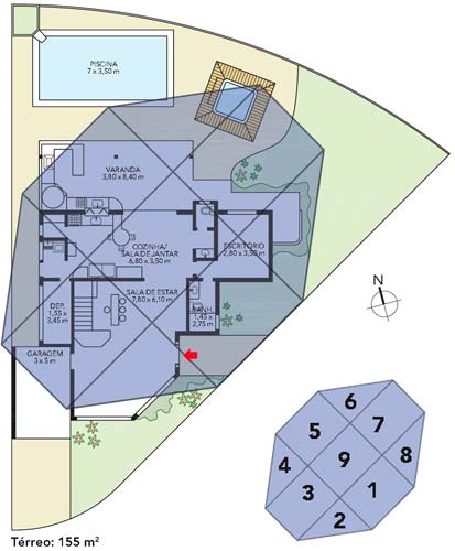
Construir num condomínio arborizado, no litoral norte paulista, foi o caminho que o engenheiro Toshiaki Ouchi encontrou para cultivar sua paixão pelo verde. Ele fez questão de erguer um refúgio confortável, onde pudesse passar os fins de semana com a esposa e os filhos. O projeto dos arquitetos Ralf Richlowsky e Eliane Alcântara Leitão privilegiou a riqueza da mata Atlântica. A natureza nos brinda com visitas de esquilos e pássaros coloridos, conta o proprietário, que já registrou a passagem de 43 espécies pelo local. O pé-direito alto de 3,20 m, as esquadrias generosas, os acabamentos protegidos da umidade e o jardim planejado com a técnica do feng shui são outras atrações deste lugar, que Toshiaki batizou carinhosamente de casa saudável.














