O apê de 92 m² ficou mais amplo com poucas mudanças
A varanda cedeu área à sala e a cozinha foi aberta. Com alguns toques de decoração, todos os espaços foram valorizados
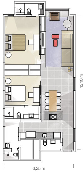
Estudante de arquitetura, o morador, Felipe Xavier Bastos, teve o privilégio de participar do trabalho do tio, o arquiteto David Bastos, na reforma do apartamento em que viveria com o irmão em São Paulo. Com menos de 23 anos de idade, eles adoram receber para jantares. Com a integração proposta por David Bastos, a ala social ficou maior e mais convidativa, seja para reuniões com amigos, seja para assistir a filmes com estilo. Os dois quartos também lucraram ao ganhar a área obtida com a eliminação de um hall íntimo. Outra medida inteligente: voltadas para a sala, as portas dos dormitórios cederam espaço extra, solução que permitiu instalar mais um armário em cada cômodo. Tudo isso soma conforto à decoração, e elementos como cortinas e paredes de tons de fendi e marrom reforçam o acolhimento presente em todo o apartamento. Confira também um projeto de 42 m² e um de 44 m².











Casa de vila de campeã do MasterChef tem cozinha de restaurante e muita personalidade
Como desentupir vaso sanitário: 7 formas de resolver o problema
Apartamento destaca arquitetura modernista com pitada nipo-brasileira
Apartamento no Jardim Europa ganha alma de casa após reforma





