Já viu uma sala-varanda? Esta casa de campo tem uma
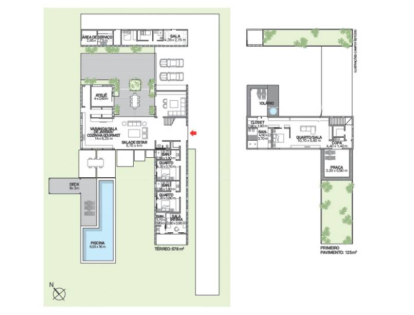
Três blocos dão forma a esta casa de campo no interior de São Paulo. O desenho em L da planta criou uma generosa sala-varanda com integração total ao jardim.










Na primeira vez em que pisou no lote sem os clientes, o arquiteto Miguel Pinto Guimarães sentou-se e mirou. Queria sentir a vocação do terreno, deixar o projeto brotar. Ao pegar sua caneta nanquim e colocar no papel o primeiro esboço do refúgio campestre, as ideias se materializaram num jogo de blocos. Diferentemente do que possa soar, não há acaso na história. A solução traduzida no croqui nasceu do desejo de explorar um elemento clássico de nossa arquitetura: a varanda. Na visão de Miguel, o lugar de calorosas reuniões familiares, presente nas moradias brasileiras desde o período colonial, evoluiu. Sua versão contemporânea é um ambiente que favorece ainda mais o contato com a paisagem ao aliar o jardim da frente ao dos fundos – papel desempenhado, nesta proposta, pela sala. Aqui, a simplicidade das construções rurais cedeu lugar a contornos sofisticados, delineados pela estrutura metálica. Mas não perdeu de vista a busca de brisa fresca, claridade, natureza. “Queria um espaço gostoso, protegido das intempéries”, diz ele. Em prol da beleza e do bem-estar, o arquiteto dispôs estrategicamente dois dos volumes de forma transversal afim de dosar o sol da tarde e os insolentes ventos da região para conquistar ventilação e insolação adequadas. Com esse arranjo, concebeu uma área exclusiva para o casal de empresários no primeiro pavimento: espécie de apartamento privativo, equipado com sala e copa, além da suíte e da deliciosa praça gramada, onde a dupla desfruta de todo o sossego do mundo, mesmo quando a morada está com a família completa. Nesta releitura, tão importante como o encontro é o recolhimento.
Kitnet de 33m² ganha área de serviço e cozinha integrada à sala após reforma
Como desentupir vaso sanitário: 7 formas de resolver o problema
Reforma de apartamento reforça a integração dos espaços para a família
7 jeitos caseiros de desentupir a pia da cozinha





