Chalé de madeira de demolição tem vista arrebatadora da serra
No alto da montanha, esta casa foi montada com piso e paredes de madeira de demolição, recriando a estética dos galpões do Sul do país num vilarejo da serra fluminense














Durante férias na Bahia, o empresário carioca se hospedou pela primeira vez num chalé de madeira de demolição, no estilo dos galpões centenários do Sul do país. Adorou a experiência: deliciou-se com os detalhes da marcenaria à moda antiga, a simplicidade, o frescor e o aconchego da construção, adaptada aos confortos da vida moderna. Quando surgiu a oportunidade de comprar um sítio em Secretário, na serra fluminense, essa memória aflorou. Por que não levar aqueles ares de antigamente, que tanto o encantaram, ao topo da montanha? Pôs-se, então, a se informar sobre os especialistas em projetar com aquela matéria-prima. Descobriu que o empreendimento baiano tinha a assinatura de uma futura vizinha: a paisagista Sonia Infante, que trabalha em parceria com o arquiteto Alex Antunes e o empreiteiro Alcinei Cordeiro na região de Itaipava, onde possui uma loja, a Arteiro.
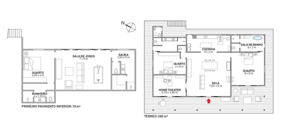
Logo no primeiro encontro, em meados do ano passado, a empatia foi total. “Ela mostrou muitas fotos, e tive certeza – era aquilo mesmo o que queria. Rústico e informal. E, melhor de tudo, Sonia propôs construir em menos de seis meses, e com custo bem atraente”, conta o empresário. Por sorte, a paisagista havia acabado de localizar uma antiga casa de festas, de quase 100 anos, em vias de ser demolida numa cidadezinha gaúcha. “Desmontamos tudo rapidamente e trouxemos para cá. As tábuas deram forma ao piso e ao forro, além de encapar toda a estrutura de concreto”, diz ela, que sugeriu mexer pouco no terreno, pousando o refúgio num trecho plano, no alto do lote. “Nos fundos, aproveitamos o grande desnível para acomodar outro quarto. A escada passa por fora, o que torna o apartamento independente”, acrescenta o cliente
No corpo principal, enxuto, há duas amplas suítes e todos os ambientes convergem para o estar, integrado à cozinha. “O dono adora cozinhar. Foi essencial montar uma sala aberta e com o forno a lenha à vista. Ali, é onde tudo acontece. As refeições da família são encontros longos e memoráveis”, diz Sonia, que assumiu o tom natural da madeira – e suas diferenças de peça para peça – em praticamente todos os espaços, mas tingiu as esquadrias. “Essa mistura rejuvenesce o visual da fachada. E azul é nossa tonalidade preferida”, revela o proprietário.
Apê de mãe e filha tem revestimento em cerâmica na parede do sofá
Qual sofá combina melhor com a sua sala?
Casa une arquitetura e natureza com desníveis e vistas incríveis
Como desentupir vaso sanitário: 7 formas de resolver o problema
7 jeitos caseiros de desentupir a pia da cozinha