Casa em terreno difícil, rodeada pelo jardim
Amigos de infância, cliente e arquiteto não recuaram diante do terreno difícil. Ergueram a quatro mãos esta casa totalmente envolvida pelo bosque num condomínio paulista.
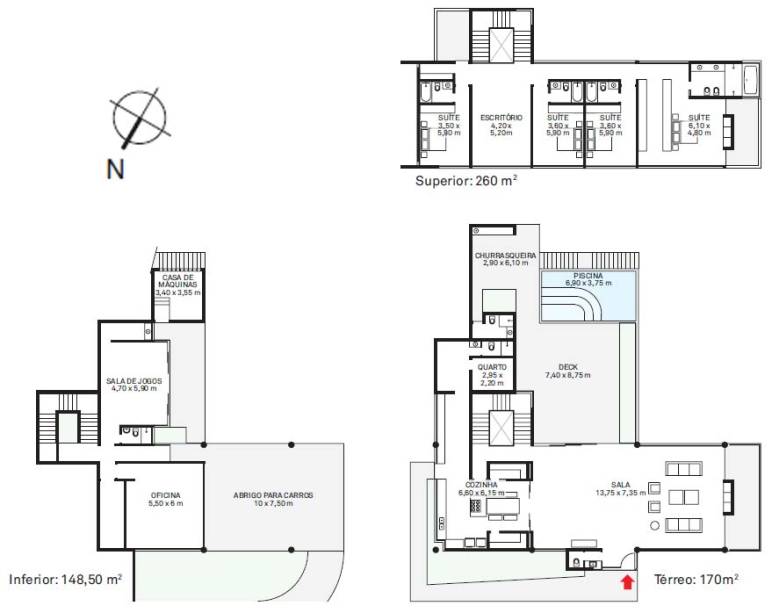
Em 2007, Eric, recém-casado, encontrou o terreno perfeito para construir sua primeira casa, perto da capital paulista: grande (1 500 m2), agradável e dentro do orçamento. Para o arquiteto Marcio Porto, seu amigo de longa data, o declive de 18 m não representava desvantagem, pelo contrário: propiciava uma vista de sonho para o bosque nos fundos. Assim, ele acomodou a construção no barranco e ainda aproveitou o entorno arborizado.












A sala é um dos pontos de encontro da casa. “Cada vez que penso em mexer em algo, chamo o Marcio e avaliamos juntos até as possibilidades de decoração”, conta o morador, que hoje mora só e adora a fuidez dos espaços deste andar abertopara a piscina e a churrasqueira, onde convivecom amigos e com a família. Dessa forma, mantém os quartos e o escritório, no piso de cima, protegidos do movimento. Da mesa da cozinha, desenhada e produzida pelo próprio morador, se pode usufruir da visão sem fm do bosque de eucaliptos. A escolha de guarda-corpos discretos, de aço, garante uma interferência mínima na paisagem, o lindo papel de parede natural que serviu de ponto de partida para a concepção do projeto.
Privacidade garantida
Aimplantação da casa precisaria resolver a distribuição do espaço num terreno a um só tempo íngreme, irregular e próximo da rua. O arquiteto queria que os andares – três vagões de concreto – tivessem entradas amplas de luz através de janelas, claraboias e portas transparentes. Mas não poderia, com isso, comprometer a privacidade do morador. assim, a fachada voltada para o passeio, na qual está a entrada de serviço, encobre a área da piscina de olhares externos. Dessa forma, as salas de estar e de jantar podem fcar abertas durante o dia para o espaço de lazer, separado do interior por portas de vidro. Além da entrada social (no térreo, sob a marquise), a possibilidade da chegada de convidados pela garagem permite isolar o convívio social da rotina da casa, que durante a metade da semana é ditada pelaagenda da pequena Mariana, de 4 anos.
Box de banho como destaque: conheça tendências com esses banheiros modernos
Confira 6 tipos de cozinhas com projetos leves e modernos
Como desentupir vaso sanitário: 7 formas de resolver o problema
Jardineiras com Filodendros contornam as esquadrias desta casa no mato
Apê elegante em tons de cinza tem painel de muxarabi iluminado com tela tensionada





