Casa de linhas retas, com estrutura de concreto e rodeada de jardins
Linhas retas e grandes aberturas desenham esta casa, cercada de jardins por todos os lados. O que a distingue, porém, é a presença marcante da cor.


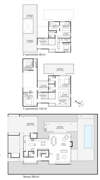
Anos e anos morando num sobrado geminado que ocupava quase todo o terreno levaram o proprietário desta casa em São Paulo a umaconclusão singela mas importante: bom mesmo é viver cercado de verde. Por isso, quando ele herdou o lote vizinho, tratou de encomendar ao arquiteto André Vainer o projeto de uma casa nova e espaçosa – na medida de seus três flhos – e repleta de jardins. A localização e o zoneamento municipal permitiriam o raro privilégio de erguer três pavimentos e avistar a mata do Parque Ibirapuera. Com a área aumentada a 602 m2, também daria para implantar a obra no centro dos dois lotes, rodeando-a de vegetação. Como a ideia não era apenas criar recantos contemplativos, mas usufruir deles, oarquiteto planejou uma grande varanda no térreo, horta, além de terraços nos andares mais altos. “Pensei numa casa toda aberta embaixo e mais fechada em cima. Um jogo de vazio e cheio, leve e pesado”, explica. Para alcançar esse resultado, ele lançou mão de uma estrutura de concreto que se sobrepõe à de aço e depois tingiu tudo de azul.
Paleta de cores usada nesta casa
Recorrente na obra do arquiteto, o azul que cobre paredes e muros tem um porquê. “Uma casa branca se confunde na paisagem, repleta de tantas outras construções iguais”, justifca. Elegeram-se cores também para os pilares e os caixilhos. Entre quatro combinações, o proprietário gostou mais da seguinte.

Ao escolher o tom levemente escuro para a textura acrílica (Ibratin, ref. R0107A-90BG 10/067), o arquiteto buscou conter o excesso luminoso e criar um clima de aconchego.

Os pilares ganharam uma tonalidade que imita o óxido de ferro, em referência ao material que compõe a estrutura. Tinta vermelho henna, ref. 30YR 14/365, da Coral.

Já as esquadrias de alumínio (feitas e pintadas pela Cerri) exibem anodização com tinta cor de titânio, opção recorrente na arquitetura contemporânea.









