Atmosfera de loft: apartamento de 60 m² tem espaço para tudo
Uma reforma econômica deu amplitude a este apartamento em São Paulo. Paredes caíram, sala e cozinha foram unidas e o quarto dobrou de tamanho. Não deixe de ver este apartamento que também foi ampliado com a derrubada de paredes.
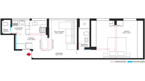
Quando pegou a chave do imóvel, herança da bisavó húngara, o arquiteto Paulo Marques logo imaginou um layout diferente e convocou o amigo Antonio Carlos Coltro, sócio no escritório RAS Arquitetura, para desenhar a nova planta. A transformação surpreende. Em busca de espaço e claridade natural, os profissionais decidiram eliminar boa parte das paredes e aproveitar todos os cantos para acomodar armários, prateleiras e eletrodomésticos. Obsessivo por arrumação, Paulo acompanhou de perto o planejamento. “Eu queria um clima masculino e harmonioso”, diz ele, que garimpou revestimentos mais em conta para pisos e paredes. Resultado: a obra custou R$ 65 mil (em 2008) e a mistura equilibrada de elementos promoveu unidade visual. Maior investimento do morador e aposta dos arquitetos, a ardósia preta chama a atenção na cozinha, na sala de estar e no banheiro, e se encarrega de garantir o tom sóbrio do lugar.






Casa de vila de campeã do MasterChef tem cozinha de restaurante e muita personalidade
Como desentupir vaso sanitário: 7 formas de resolver o problema
Apartamento no Jardim Europa ganha alma de casa após reforma
7 jeitos caseiros de desentupir a pia da cozinha





