Apartamento dúplex reformado antes da entrega das chaves
Propostas ousadas: a reforma deste dúplex de 165 m² começou a ser idealizada antes da entrega pela construtora. O projeto aposta em 19 boas sacadas, como iluminação cênica e acabamentos criativos
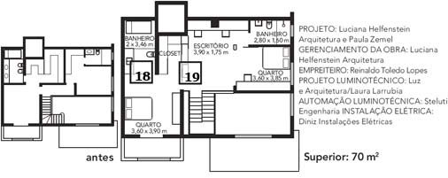
Poucos apartamentos e moradores jovens. O perfil deste empreendimento, na zona sul paulistana, era exatamente o que o diretor comercial Edson Oliveira e o booker de uma agência de modelos Nelson Quionha procuravam. Quando eles conheceram o modelo decorado, o edifício já estava subindo, mas ainda deu tempo de negociar com a construtora as mudanças na planta (clique na foto ao lado para conhecer as vantagens e as desvantagens dessa customização). Seguindo o projeto das arquitetas Luciana Helfenstein e Paula Zemel, o dúplex de 165 m² foi entregue sem acabamento e com paredes a menos o que agilizou a conclusão da reforma de cinco meses e também trouxe economia, pois não foi preciso quebrar nada para trocar os revestimentos. Visite o apartamento neste vídeo, em que a arquiteta Luciana Helfenstein mostra os detalhes do projeto.











Jardim no quintal e corredor: como criar um oásis verde em casa
Jardim rústico provençal: quintal tem móveis DIY, muitas flores e rede confortável
Como desentupir vaso sanitário: 7 formas de resolver o problema
Decoração afetiva: apê de 70 m² tem azulejos, objetos de família e pegboard na cozinha
Marcenaria personalizada e cozinha azul são destaques em apê





