Ordem na lavanderia
Quem não sonha em ter uma área de serviço bela e prática, sem vassouras, baldes e produtos de limpeza à vista de todos?
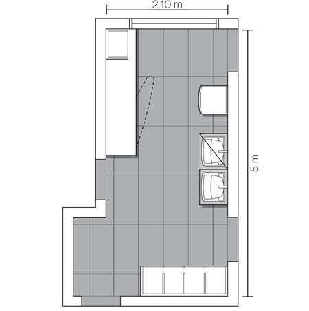
1 – Espaço otimizado
Da sala do apartamento, é possível avistar a área de serviço, logo após a cozinha. “Como usamos os mesmos tipos de acabamento e escondemos a bagunça nos armários, quem entra nem percebe que são ambientes diferentes”, diz o designer de interiores Décio Navarro, que assinou a reforma. A necessidade de aproveitar ao máximo o espaço de 6 m² pautou as soluções. Um exemplo é a bancada de 85 cm de altura, que divide os dois ambientes. “Ocupei o lugar de uma antiga porta com este armário com tampo de teca.” Vassouras e rodo dividem o módulo comprido ao lado dele. Já a tábua de passar e as roupas sujas ganharam um esconderijo sob medida: o móvel com gavetões embaixo da janela, que também foi substituída. “Para conseguir melhores ventilação e luz, troquei o modelo de correr pelo tipo máximo-ar.”





2 – Acabamentos elegantes
Paginado em placas de 1 x 1 m, o piso de granito preto são gabriel confere um aspecto impecável ao ambiente de 13 m², projeto do arquiteto José Ricardo Basiches. Para garantir a unidade visual, o mesmo acabamento veste as bancadas. Uma delas conta com tanques embutidos no armário, outra idéia que revela a opção por uma decoração limpa. “Além de deixar o ambiente elegante, essa é uma medida que ajuda a tirar melhor proveito do espaço”, ensina José Ricardo. Com uma aparência que reproduz a do aço inox, o laminado melamínico da marcenaria não destoa do conjunto. É o caso também das lavadoras metálicas. “O segredo para criar uma boa lavanderia é não inventar muito na decoração. Dou preferência a materiais práticos e fáceis de limpar e a soluções funcionais, que agilizam a rotina”, complementa.


Vai comprar uma lavadora?
Antes de ir à loja, não se esqueça de conferir o espaço disponível. Certifique-seda largura e da profundidade e também se vai ser preciso deixar um respiro para abrir alguma porta quando estiver chegando com o carrinho de compras, por exemplo. Verifique se há instalações elétricas e hidráulicas adequadas à lavadora. É o caso da altura para a mangueira de saída de água, que deve estar en80 e 90 cm. Dúvida na escolha do modelo? “Se você vai usar apenas as funções básicas, não vale a pena pagar por tecnologias extras, como sensores de sujeira”,recomenda o designer Gustavo Chelles, autor do desenho de alguns produtos no mercado. O número de pessoas em casa deve ser levado em conta. “Para quem mora sozinho, uma lavadora de 4 kg é suficiente. Já o modelo de 6 kg atende a umfamília de quatro”, indica Chelles. Se você lava edredons com freqüência, prefira as de 8 a 10 kg. Os idosos vão se dar melhor com aquelas que possuem tampa superior. As de abertura frontal exigem que você se abaixe para retirar a roupa.

Soluções funcionais
Antes da reforma, o tanque ficava longe da máquina de lavar e dos varais, uma distribuição que complicava o trabalho na área de serviço, de 11,5 m². Repensado pela arquiteta Teresa Simões, o ambiente agora agrupa funções: ferro perto da tábua de passar e lavadora ao lado do tanque. Feito sob medida, o modelo de aço inox conta com dois compartimentos – o primeiro para deixar as roupas de molho e o segundo para o enxágüe. Outra boa idéia aparece no armário de laminado plástico. Além da tábua camuflada na marcenaria, ele encerra cestos para roupas sujas e de passar. Já o aquecedor a gás está escondido na torre lateral vazada com frisos horizontais, que garantem a ventilação necessária ao aparelho. “Projetei uma marcenaria limpa e prática. Com visual organizado, o espaço agora tem melhor fluxo”, diz Teresa.





Lavadoras pequenas e médias




Lavadoras grandes




*PREÇO MÉDIO SUGERIDO PELO FABRICANTE EM MARÇO DE 2008.





