5 quartos pequenos e confortáveis
Móveis versáteis e soluções de marcenaria aproveitam centímetros em cinco ambientes de até 13 m²
Em espaços pequenos, a ordem é não desperdiçar centímetros. Por isso, estes cinco ambientes, de até 13 m², contam com móveis enxutos e projetos de marcenaria feitos sob medida, que garantem o aproveitamento da área sem perder o conforto. Entre as ideias, há um painel que traz unidade visual, uma estante na lateral da cama, penteadeira e escritório, cantos aproveitados e um banheiro incorporado. E se você mora em um apartamento pequeno aproveite 19 ideias de decoração para espaços reduzidos.
Painel traz unidade visual Uma placa de madeira ebanizada abrange todo o comprimento da parede principal, no quarto de 11,80 m², projeto da arquiteta Paula Magnani. Com apenas 4 cm de espessura, ela substitui uma cabeceira tradicional, roubando menos espaço do ambiente, explica Paula. A solução foi importante para deixar uma área de circulação confortável, com 82 cm, entre a cama e o móvel da TV, uma vez que o equipamento foi um pedido expresso dos moradores. Acomodei os aparelhos em um banco, o que evitou que o quarto ficasse com a cara de home theater.



Voltar ao topo
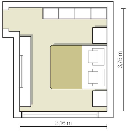
Estante na lateral da cama
Substituir a cabeceira por uma faixa de papel de parede de 1,60 m de largura teve o efeito de alongar o pé-direito neste quarto de 11,80 m². As laterais pintadas em um tom contrastante reforçam essa impressão, ensina a arquiteta Kharina Fiúza, dona do ambiente e autora do projeto. Como precisava de espaço para livros, Kharina posicionou uma estante ao lado da cama. Ela tem 39 cm de profundidade, o que reduziu a área de circulação ao mínimo necessário. A bancada estreita sob a TV oferece apoio extra. Comporta até um laptop.



Voltar ao topo
Com penteadeira e escritório A incorporação de parte de um cômodo contíguo trouxe conforto ao quarto do casal, agora com 12,80 m². Ganhamos quase 4 m² com essa solução, aproveitados com estantes e armários, diz a arquiteta Paula Abbud, responsável pela reforma com a sócia, Denise Aguilar. Além da estação de trabalho e do pequeno home theater instalado no painel à frente da cama, o projeto conseguiu incluir até uma penteadeira, antigo sonho da moradora. Fizemos o espaço render. A opção por cores claras, como o bege da cabeceira, colaborou para essa percepção.




Voltar ao topo
Cantos bem aproveitados
O desafio do projeto elaborado pela designer de interiores Paula Almeida era explorar o formato comprido e estreito do quarto, de 12,88 m². Para isso, desenhei o móvel branco laqueado percorrendo o ambiente de ponta a ponta, diz. Multifuncional, ele se desdobra em cabeceira, criado-mudo e bancada usada ora como penteadeira, ora como apoio para o laptop. Interrompida pelas portas do banheiro e do closet, a parede à frente da cama ganhou o revestimento de freijó. O painel confere um ar elegante ao ambiente e ampara a TV.




Voltar ao topo
Banheiro incorporado
Ao abrir uma parte do banheiro para seu quarto, o arquiteto Flavio Hermolin ampliou visualmente o espaço. Deixei a área do lavatório à vista, o que aumentou a impressão de profundidade, explica. A esse respiro, somou-se a incorporação de um trecho de outro ambiente, o que permitiu somar 2 m² ao cômodo, agora com 11,60 m². Uma marcenaria meticulosa tirou proveito de cada centímetro. Coloquei armário até no estreito corredor de saída. No nicho à frente da cama, foram instaladas a TV e uma bancada, usada como miniescritório.



Voltar ao topo





