Reforma na casa de vila com reciclagem de materiais e móveis
Para manter a atmosfera dessa casa de vila em São Paulo, os donos fizeram uma reforma mantendo itens queridos
















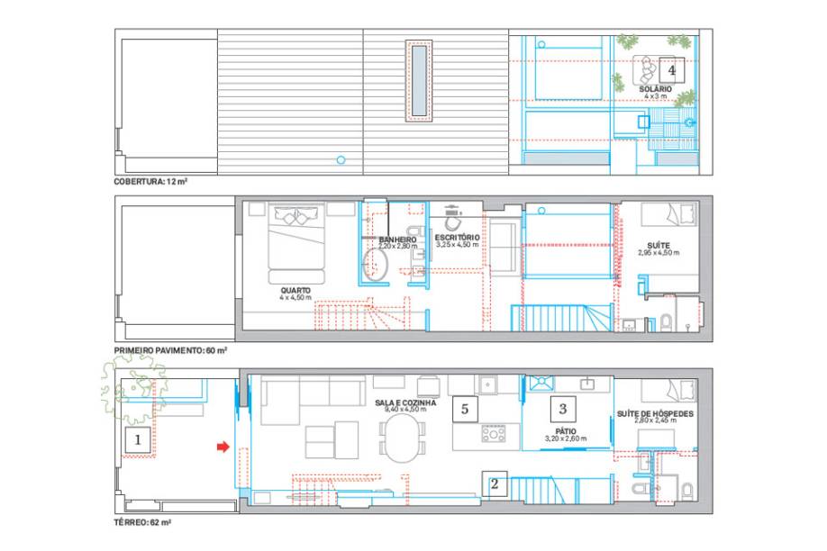
Ainda bem que os arquitetos Thais Aquino, Luis Bernardini e Marcelo Nunes, do escritório paulistano DT Estudio, gostam de pensar e repensar os ambientes até chegar a um layout irretocável. Procurados pela especialista em finanças Camila Penteado, eles ainda não imaginavam o valor essa habilidade na reforma que estava por vir. Afinal, o discurso da cliente rechaçava qualquer mudança radical. “Ela e o marido, Frederico, adoravam a casa na zona oeste de São Paulo, onde viviam, e temiam mexer demais. Mas, para abrir a área que queriam, teríamos de reorganizar tudo”, sintetiza Thais. O talento dos profissionais e a atenção que costumeiramente dispensam ao planejamento e aos detalhes contaram para o sucesso da empreitada – além de sua sensibilidade, claro. “Quando apresentamos o primeiro estudo, a Camila se assustou. Entendemos que seria preciso ir com jeito e trabalhar com ela”, lembra Luis. Os arquitetos estavam certos, como comprovou a dinâmica dos dois anos seguintes, período em que cada decisão foi minuciosamente discutida, amparada em fotos de referência e, depois, ratificada em imagens digitais sem margem para dúvidas. “Trocamos uns 2 mil e-mails”, diverte-se Camila, descrevendo o processo de verdadeiro artesanato arquitetônico. O começo de tudo se deu no anteprojeto, etapa que atestou a viabilidade da obra, definiu as linhas gerais e esmiuçou o orçamento. “Na reunião, eles apresentaram uma planilha com todos os itens que seriam reaproveitados. Eu adorei!”, diz a dona do pedaço. “O sobrado tinha móveis novinhos, além de acabamentos e objetos trazidos dos Estados Unidos. Não fazia sentido jogar isso fora”, prossegue. Para ela, os cinco anos vividos em Nova York haviam rendido lembranças especiais e boas histórias – nessa época, criou seu blog sobre viagem, estilo de vida e decoração (www.iamleaving2day. com). Era vital preservar cada memória. Atentos, os arquitetos foram cuidadosos durante a demolição e ainda pegaram carona nas viagens que o casal seguiu fazendo ao exterior. “Sugerimos luminárias bacanas, e eles as trouxeram na mala”, conta Thais. Tudo para arrematar a casa, que, após nove meses, ficou mais ampla, sem perder o ar aconchegante de antes, os tijolinhos antigos, o sofá marrom… Mas agora desfruta de muita luz natural, áreas externas aproveitáveis e o desejado quarto a mais, à espera de um bebê.
Cozinha verde e azul: a tendência de decoração + dicas e inspirações
Parede atrás do sofá: 3 ideias criativas para decorar e valorizar a sala
Parede em frente à cama: 4 jeitos criativos para aproveitar esse espaço do quarto
Dicas práticas para remover manchas nas axilas e preservar tecidos
Apartamento tem ambientes multifuncionais e quartos infantis temáticos





