Marcelo Rosenbaum e o projeto de uma casa com intimidade preservada
Indevassável na face voltada para a rua, esta casa encanta pelos espaços internos flexíveis e luminosos. As ideias de Marcelo Rosenbaum garantiram o bem-estar da família.
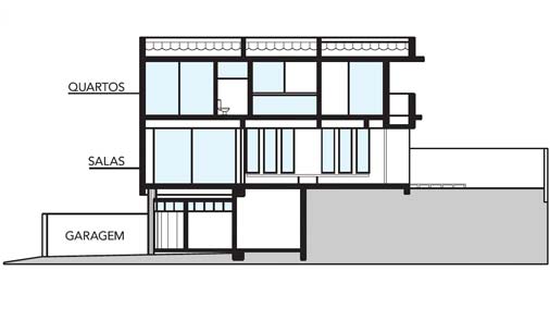
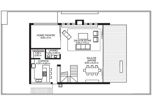
Neste terreno havia uma casinha de 1964. O casal paulista comprou o imóvel pensando em reformá-lo. Porém, ao procurar o escritório Rosenbaum, os dois receberam a sugestão de derrubar tudo e começar do zero. “A sacada foi cortar o terreno inclinado, deixando-o no nível da rua”, comenta a moradora. “Da rua só se vê uma caixa. É uma surpresa deparar com o pátio coberto de mosaico português, o jardim e a parede arredondada ocultando a lavanderia”, completa Marcelo. O designer diz que o que mais o agrada neste projeto é a possibilidade de acompanhar o curso do sol durante e a idéia simples de morar com muita luz, conforto e integração. Marcelo Rosembaum que afirma querer desenhar cada vez mais produtos populares, foi o criador de um modelo de pisos vinilico e uma estampa para partilha, na feira Revestir 2009.





















