Casa envidraçada com brises e persianas automáticas
Arquitetura de linhas retas e concreto, fachada aberta, com textura surpreendente. A casa em Brasília deixa a luz entrar e atrai olhares
*Matéria publicada em Arquitetura & Construção #309 – Janeiro de 2013















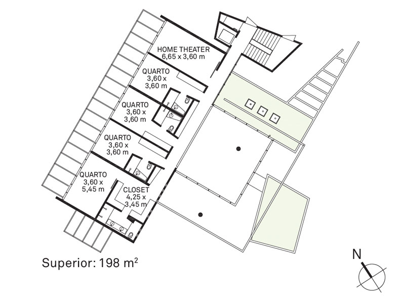
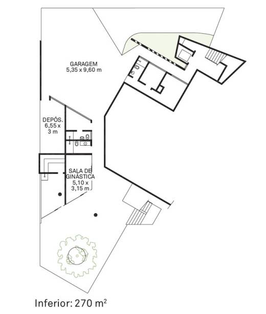
A estrutura de pilares aparentes, o pé-direito duplo e os grandes painéis envidraçados desta construção pouco lembram o primeiro trabalho da carreira de Sérgio Roberto Parada, feito há 38 anos. “Era uma casa encostada no solo, toda de concreto, brutalista”, revela ele. De lá para cá, inúmeras experiências enriqueceram o repertório desse curitibano com mestrado em urbanismo no México e radicado em Brasília. “Hoje, não imagino a arquitetura como algo só para a família, mas também como contribuição para a cidade”, pondera. “Uma moradia não deve fcar isolada do espaço público, assim como é essencial a integração entre áreas internas e externas”, diz. Essa máxima, observada neste projeto, começa nos 2 880 m2 de jardim, em grande parte visível desde a calçada graças à ausência de muros (na pág. ao lado, foto menor). Ao distribuir a morada em três patamares, Sérgio aproveitou bem o declive para conquistar o melhor visual da paisagem. “No terraço acima dos quartos, enxergamos a cidade em 360 graus”, gaba-se o morador, o empresário Manoel Caetano.
*Matéria publicada em Arquitetura & Construção #309 – Janeiro de 2013
Casa cheirosa: receitas caseiras simples para perfumar o ambiente naturalmente
Sinais que sua máquina de lavar precisa de limpeza
Geladeira vintage preta vira cristaleira na reforma deste apê com décor náutico
O prédio luxuoso caindo em Manhattan e o dilema dos arranha-céus
Refúgio em Itaipava: Casa de campo integra arquitetura à bosque de araucárias centenárias





